About our Dundas home

This spacious 5-bedroom home in Dundas is shared by 4 housemates aged 50 - 65. This home is designed to meet the individual needs of residents requiring Supported Independent Living (SIL) and offers a perfect balance of accessibility, community engagement, and tailored support services.

Property features
  • SDA property includes seamless wheelchair access  

  • Spacious and wide design to accommodate high needs 

  • Lifters for transfers and other amenities for enhanced accessibility

  • Fully accessible bathrooms 

  • Shared van available 

  • Outdoor area with garden and BBQ

  • Walking distance to Dundas and Telopea shopping precinct with cafes, restaurants and pubs 

  • Local services include a medical centre, hairdressers, post office, nail salons and churches 

  • 5–8-minute drive to Eastwood, Carlingford, Dundas Park, and local shops 

  • Convenient access to Telopea and Eastwood Train Stations 

  • Manager's office located in the building

  Service features 
  • Support suitable for complex medical and behaviour needs  

  • Registered nurses on site 24/7

  • 24-hour support from expert Senior Support Workers, Support Workers, and Assistant in Nursing staff who are well trained to individualise client needs

  • Weekly activities such as in house music therapy and gardening

  • Community Participation

  • Drop in and Day support programs

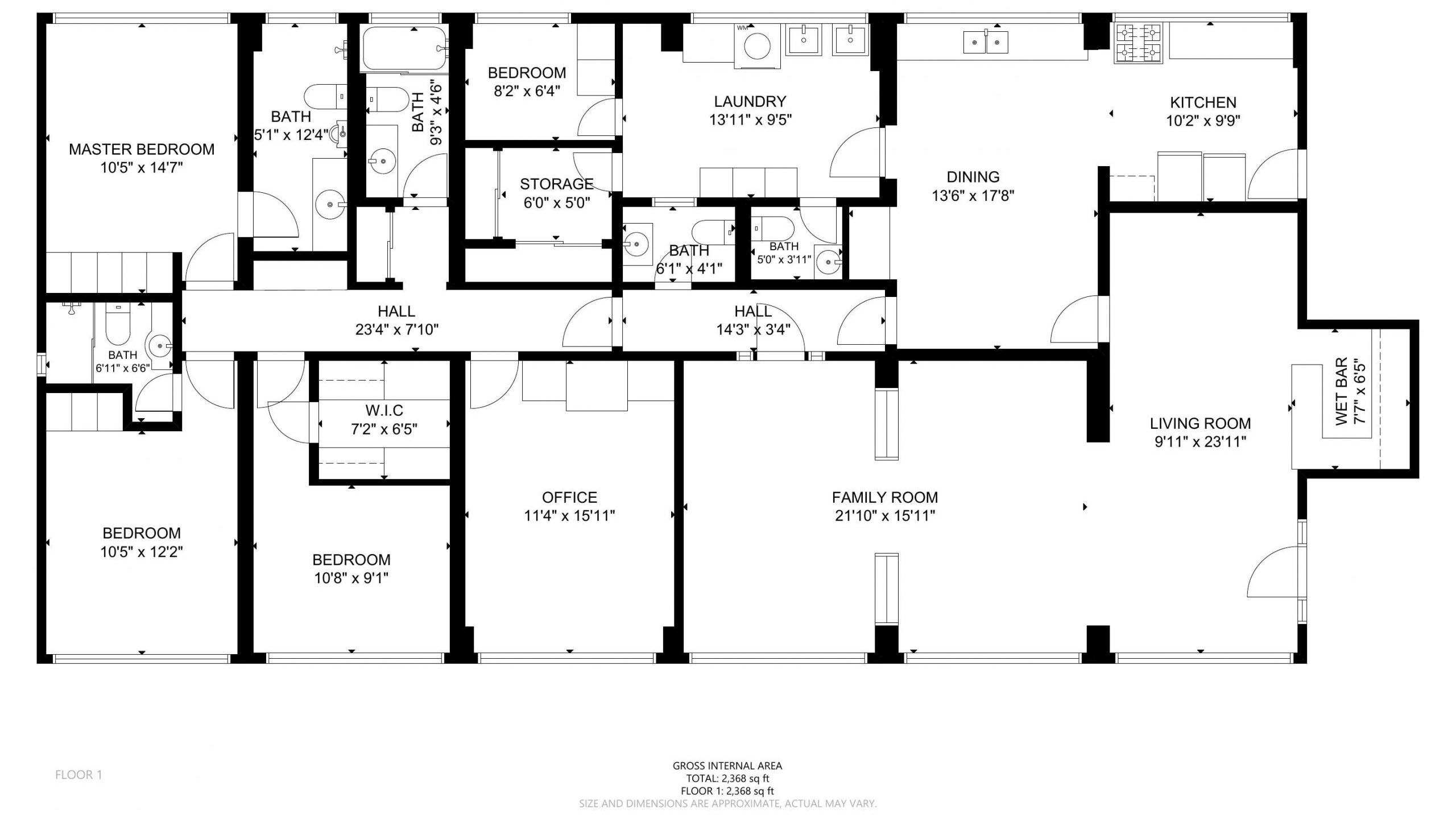
Floor Plan

Watch our video

Location

*Please contact us on 1300 22 44 38 for the home address

About the housemates

The four housemates in this Dundas home are aged between 50 and 65, each with their own unique personalities, interests and likes. All the residents communicate non-verbally. Some housemates enjoy going to day programs or community access during the day whilst others like their own space at home.